«Un consumo di suolo pari ad almeno 72 ettari, equivalenti a 100 campi di calcio». È quanto denunciato dal Forum Ambientalista e dal Forum H2O con il dossier dall’eloquente titolo Vasto cemento, realizzato da Augusto De Sanctis. Il documento di 20 pagine (scaricabile in fondo all’articolo) è stato redatto in base ai procedimenti Vinca e Vas in corso sul sito del Comune di Vasto al 3 aprile 2026. Ciò che emerge è una volontà edificatoria di amplissime proporzioni.

«Consumo di almeno 72 ettari»
«Vasto è un caso paradigmatico. Dimostriamo, carte alla mano, che nell’ultimo anno solo in questo comune sono stati avviati procedimenti amministrativi per piani edilizi che se realizzati comporterebbero un consumo di suolo pari ad almeno 72 ettari, equivalenti a 100 campi di calcio. Terreni dove oggi ci sono oliveti e piante. Il tutto in un contesto estremamente vulnerabile al rischio idrogeologico e dove già ora si registra un consumo di suolo del 14,9% dell’intero territorio comunale, tre volte la media regionale e oltre due volte quella nazionale. Vasto è la punta dell’iceberg di una miriade di nuovi interventi edilizi pesanti previsti lungo la costa abruzzese, da quelli che minacciano i paesaggi più belli di Ortona e San Vito chietino a quelli che interessano vari comuni teramani da Martinsicuro a Roseto», dice De Sanctis.

I dodici piani edilizi
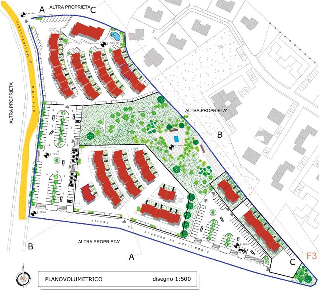
Sotto la lente delle due associazioni, in queste settimane, ci sono stati i 12 nuovi piani edilizi nel comune di Vasto per i quali, dal 2025, è stata avviata la procedura di Valutazione Ambientale Strategica, in quanto il Piano Regolatore non vi fu assoggettato a suo tempo: Piano attuativo F8 Piano Costa, Comparto 59 e 60 S. Antonio Abate, Piano d’Area d’Iniziativa Comunale Ambito C1 – Circonvallazione Istoniense, Piano d’Area d’Iniziativa Comunale Ambito C1 – Sud-ovest S. Antonio Abate, Piano d’Area d’Iniziativa Comunale Ambito C1 – Via del Porto, Piano di Lottizzazione Comparto Mar.Cel. Hotels srl – Raspa – D’Ascenzo, Camping Grotta Saraceno, Piano Attuativo di iniziativa privata in località Montevecchio, Piano attuativo di iniziativa privata in zona D6 di P.R.G. in località Casarsa SS 16 Nord, Proposta di progetto di attuazione del comparto “V4” loc. San Nicola, Progetto per la realizzazione di una struttura da adibire a deposito di manufatti pirotecnici – via Polercia, Eco-resort Punta Aderci.

Alcuni di questi toccano aree di rilevante valore naturalistico e paesaggistico, dalla riserva di Punta Aderci fino all’ambito costiero a sud del porto lungo la Via Verde, dove ad esempio il comune prevede un consumo di suolo di oltre 6 ettari in diversi interventi per consentire la realizzazione di parcheggi e strutture per la ristorazione (e similari).
Anche a Marina di Vasto, in un lotto contiguo al sito Natura2000 e riserva naturale regionale “Marina di Vasto”, si prevede la realizzazione di ulteriori palazzine per un complesso turistico.
Poi ci sono i tre enormi Piani d’area (denominati Istoniense, S. Antonio Abate e Via del Porto) che prevedono nuovi edifici per migliaia di abitanti, con relative strutture commerciali. Sono in tutto ben 31 comparti edilizi che saranno responsabili di un consumo di suolo fino a 57 ettari; oggi molti di questi terreni ospitano magnifici oliveti.
Montevecchio
Anche la collina di Montevecchio, che ha importanti criticità di tipo idrogeologico, non viene risparmiata, con un imponente piano edilizio di tipo turistico che prevede la realizzazione di diverse palazzine per un consumo di suolo minimo di 1,8 ettari. Qui la Vas è stata già approvata nonostante palesi incongruenze tra i numeri riportati nel Rapporto ambientale e quelli dichiarati dai progettisti sui parametri urbanistici.
«Invece di procedere con un’analisi omogenea e integrata tenendo conto dell’effetto cumulo, il comune di Vasto l’ha spezzettata, accettando anche documenti palesemente carenti proprio sul tema del consumo di suolo. Addirittura gli uffici comunali stanno reiteratamente ignorando i richiami dell’Agenzia regionale per la Protezione dell’Ambientale che reclama un approccio integrato che tenga conto degli impatti generati da tutti questi interventi edilizi», aggiunge ancora De Sanctis.

«Totale insostenibilità degli interventi»
«Critiche, seppur meno ficcanti rispetto alla gravità della situazione, anche dagli altri enti che pure, in maniera contraddittoria, in alcuni casi si sono limitati a evidenziare la coerenza degli interventi con le previsioni originarie del Prg. Così però si svuota completamente di significato proprio quella Valutazione Ambientale Strategica a cui quel piano regolatore non era stato mai sottoposto. Gli enti sovra-ordinati, a partire dalla Regione, stanno venendo meno al loro ruolo di indirizzo territoriale».
«Una Vas svolta in modo coerente non avrebbe potuto che constatare la totale insostenibilità di tutti questi interventi, imponendo una profonda revisione del piano regolatore. A maggior ragione se nel solo comune di Vasto l’Istat segnala la presenza di oltre 9mila immobili vuoti».

«Nei comuni costieri ad ogni pioggia si possono verificare gli effetti della scriteriata copertura e modifica del suolo e di un’antropizzazione che non ha tenuto conto delle pressioni che questa opera su un sistema dei servizi che non regge: a) impossibilità per l’acqua di infiltrarsi con conseguente ruscellamento superficiale e allagamenti; b) frane diffuse; c) gravi criticità per quanto riguarda i servizi di depurazione e di disponibilità di acqua potabile».
«Il consumo di suolo non attiene alla sola impermeabilizzazione del territorio. Riguarda anche i cicli biogeochimici, a partire da quelli di azoto, fosforo ecc, che vengono azzerati o fortemente alterati quando si modifica fortemente il tipo di uso del suolo, per non parlare dell’ovvio impatto diretto sulla biodiversità (non basta, cioè, sostenere di costruire un parcheggio in materiale drenante per non avere consumo di suolo). I recenti eventi tra alluvioni e frane hanno riacceso l’attenzione sulla questione dell’abuso del territorio. In realtà le associazioni nonché gli organi scientifici dello Stato e gli esperti denunciano da tempo l’inarrestabile depauperamento della risorsa suolo. In questo senso la costa Adriatica ha scontato un disordinato sviluppo edilizio. Pescara ha oltre il 50% del suolo consumato. Martinsicuro il 33%. Ortona il 14%».
«Lungo la tanto osannata costa teatina, si affastellano vasti progetti edilizi. Tante chiacchiere ipocrite vengono spese sui rischi ambientale, compresi quelli derivanti dall’innalzamento del livello del mare. Poi però prevalgono gli interessi privati sul bene comune. Servirebbe un ampio e capillare movimento che si opponga a questa colata di cemento portata avanti dai profeti della betoniera, a partire dalla giunta Menna a Vasto», concludono le associazioni.








Ma dove sono tutti questi abitanti? Qui e’ tutto un riciclaggio di denaro sporco. Alziamo la guardia.