Il dibattito sul nuovo piano edilizio a Vasto si infiamma dopo la replica del sindaco, Francesco Menna, alle critiche degli ambientalisti. Forum H2O e Forum Ambientalista rispondono duramente.

«Da Menna reazione scomposta per buttare la palla in tribuna: dal sindaco non un’informazione, non un documento perché è impossibile smentire i dati contenuti negli atti ufficiali depositati in Comune», afferma Augusto De Sanctis, richiamando le segnalazioni già inviate agli organi competenti e gli accessi agli atti avviati sui singoli interventi edilizi.
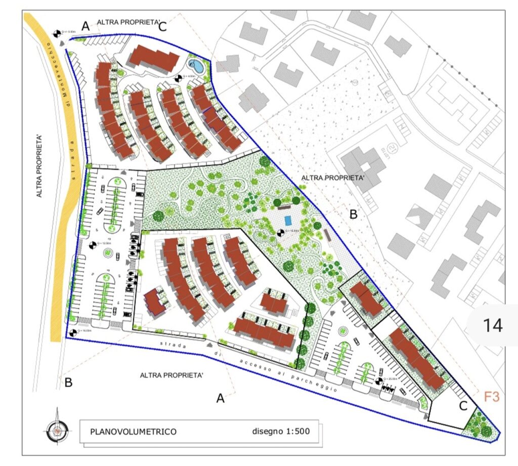
Tra i casi finiti sotto la lente delle associazioni c’è quello della collina di Montevecchio, dove «gli ulivi dovrebbero far posto a decine di edifici per un volume di quasi 60.000 mc e 18.000 mq di consumo di suolo».
«In un comune con il 15% del territorio già cementificato o asfaltato e 9.000 immobili non utilizzati, con frane diffuse e allagamenti, irresponsabile sacrificare ulteriori 72 ettari di suolo».
De Sanctis invita il primo cittadino a riflettere sulle parole del presidente della Repubblica. «Il sindaco di Vasto Menna dovrebbe far tesoro del recente richiamo del capo dello Stato Mattarella ‘Il potere può, in effetti inebriare e far perdere l’equilibrio, attenti all’autoesaltazione’» scrive l’esponente del mondo ecologista, precisando poi che il riferimento di Mattarella era a Donald Trump, ma che «fatte le debite proporzioni, a nostro avviso ben si addicono anche alla scomposta performance a base di slogan e insulti con cui il sindaco ha inutilmente provato a replicare».
Le associazioni contestano anche le affermazioni sulla presunta svalutazione del patrimonio immobiliare cittadino: «Da Menna non un’informazione, non un documento ma, addirittura, l’accusa di deprezzare gli appartamenti esistenti», si legge nella nota, che richiama anche il tema delle case vuote: «Se a Vasto secondo l’Istat ci sono già oggi oltre 9.000 abitazioni vuote, se si costruisce ancora, inondando il mercato di nuovi immobili, chi è che svaluta gli appartamenti esistenti?».
Forum H2O e Forum Ambientalista annunciano inoltre ulteriori iniziative: «Oltre a divulgare al vasto pubblico le intenzioni del comune e a fare le segnalazioni di rito agli organi competenti, abbiamo avviato ulteriori approfondimenti sui singoli piani edilizi a partire dal pesante intervento previsto sulla collina di Montevecchio». Nel mirino anche la trasparenza amministrativa: «Abbiamo quindi attivato un accesso agli atti sugli studi sul rischio frane richiesti da anni al comune e sulle segnalazioni che hanno portato anche dei geologi a proporre pubblicamente il vincolo di inedificabilità per via dei diffusi dissesti riscontrabili nella zona».
«Su questa collina, al posto di centinaia di magnifici ulivi verrebbero realizzate, come da planimetria allegata, decine di immobili per un volume di quasi 60.000 mc con un consumo di suolo di almeno 18.000 mq”. De Sanctis chiede chiarimenti su presunte incongruenze documentali: «Il comune dovrebbe spiegare perché non ha rilevato la gravissima contraddittorietà tra i dati di consumo di suolo riscontrabili inequivocabilmente nelle tabelle depositate da progettisti e quelli, molto più piccoli, indicati erroneamente nel Rapporto ambientale del piano».









La variante della SS 16 deturpava il paesaggio, il cemento edilizio no. Questione di punti di vista moooolto diversi. Colpo di coda di fine mandato?